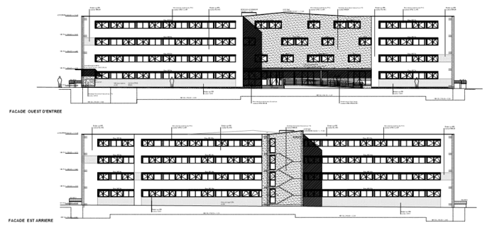
Neuves Maisons – Restructuration d’un foyer en résidence de 100 logements

Maître d'ouvrage
Présence Habitat
Architecte
BTM & Associés
Date de réalisation
Etudes réalisées en 2017
Surface utile (en m2)
Coût de construction

Neuves Maisons – Restructuration d’un foyer en résidence de 100 logements

Mission :
Restructuration d’un foyer en résidence
Informations complémentaires

Nos dernières réalisations